智慧济大

2020届本科毕业生优秀毕业设计作品展
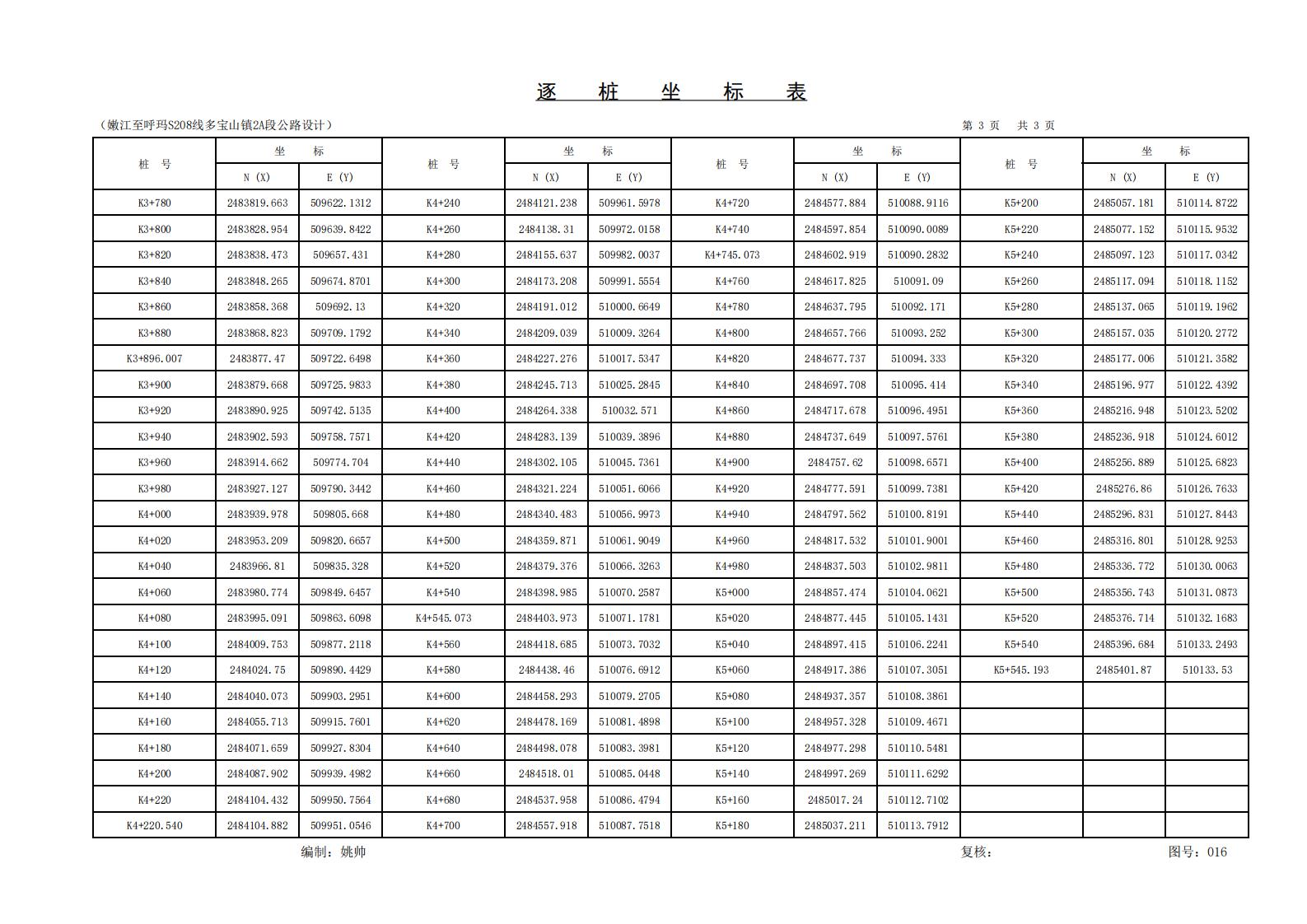
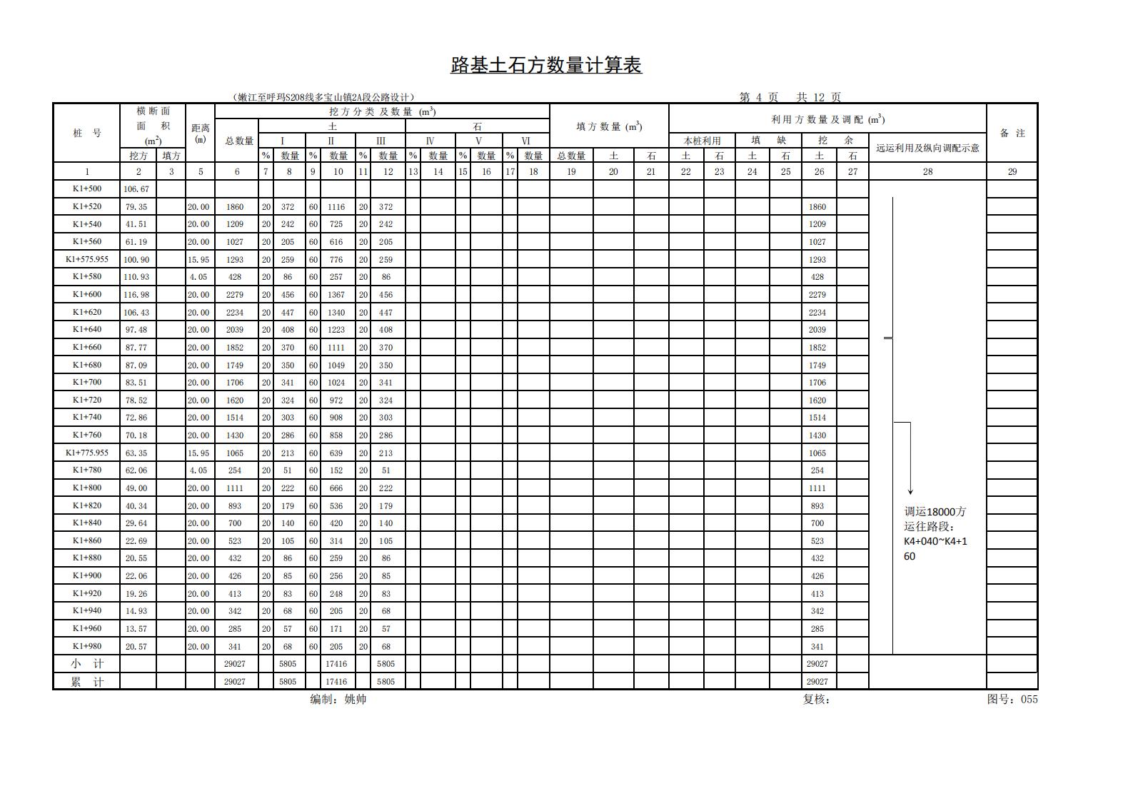
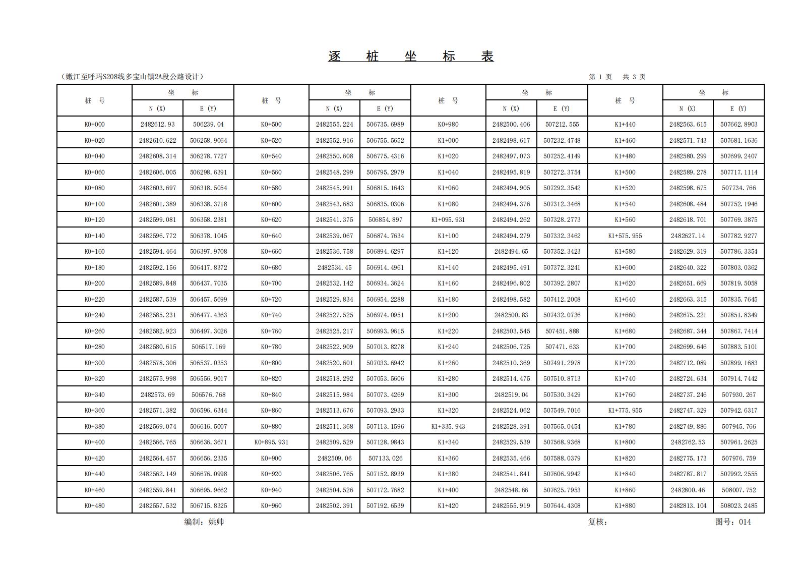
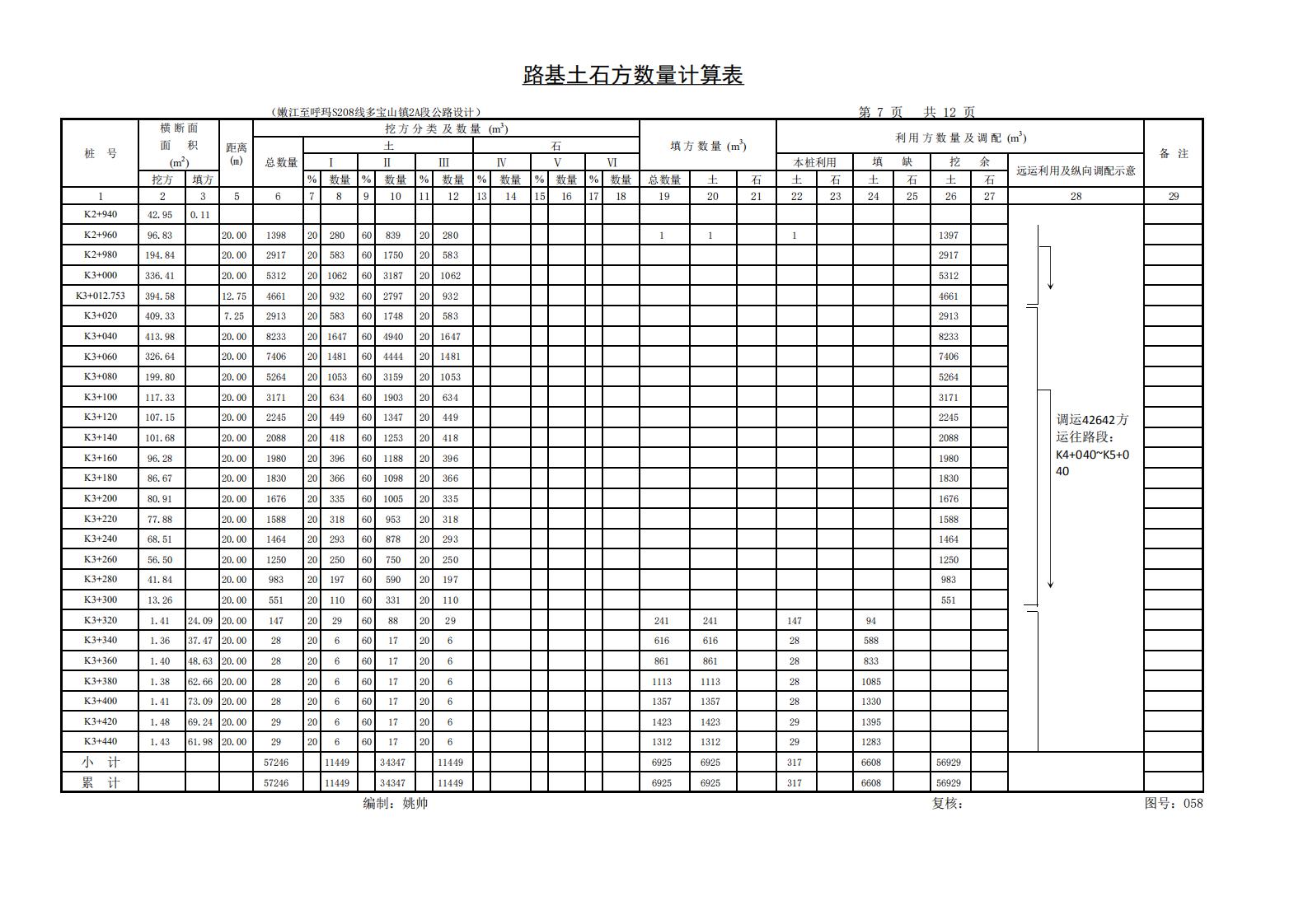
姚帅
2020-06-24  点击:[]



上一条:张乐乐

下一条:张超强

邮编:250022   地址:山东省济南市南辛庄西路336号
Copyright © 2001-2020 济南大学土木建筑学院     鲁ICP备09051414号

学院微信公众号

学院微信公众号

地址:山东省济南市南辛庄西路336号

济南大学土木建筑学院版权所有

鲁ICP备09051414号